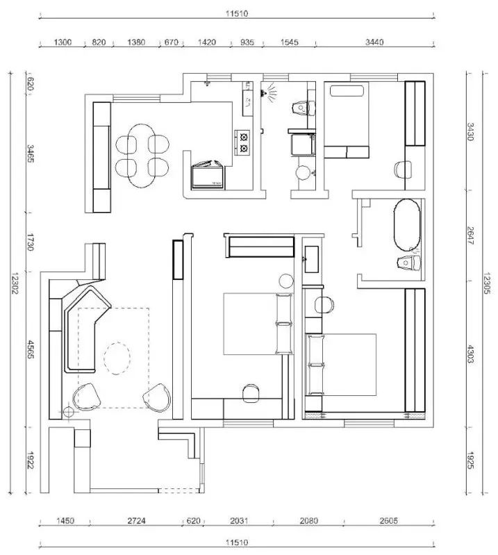
房子就位于一楼,是零几年的老房,几乎具备上述的全部优缺点——优点是有个赠送的小院,使用面积大,进出方便;然而一楼的位置以及老房的传统结构,决定了它的采光通风很差。 屋主是一对夫妻,常住人口还有一个两岁的女儿和爷爷奶奶。作为不再置换的长住房,而且有孩子有老人,一家人对改造的需求很迫切。
新家装修要花多少钱?
免费获取装修预算,不花冤枉钱
81869
1室 1厅 1厨 1卫 1阳台
1室2室3室4室5室6室
1室2厅3厅4厅5厅6厅
1厨2厨3厨4厨5厨6厨
1卫2卫3卫4卫5卫6卫
1阳台2阳台3阳台4阳台5阳台6阳台
案例:4 攻略:0
天盛装修公司是集室内设计、预算、施工、材料与一体的专业化装饰团队,凭借超前的设计构思、合理的预算报价、精良的施工工艺,优质的全程服务,以客户的需求和满意为核心,以“诚信”为宗旨,不断的用优质、精美、具有创造力的空间装饰产品为客户提供更大的价值回报。 天盛装修公司致力于办公室、商铺、写字楼、厂房、银行、商场、酒店及餐饮娱乐等商业类型的室内设计及装修施工工程,拥有丰富的设计及施工经验。
辅材代购 半包施工 免费报价
济南市济阳区澄波湖一号
优惠活动推荐
更多 >
相关装修问答
更多 >
分享到
新家装修要花多少钱?
免费获取装修预算,不花冤枉钱
81869
1室 1厅 1厨 1卫 5阳台
1室2室3室4室5室6室
1室2厅3厅4厅5厅6厅
1厨2厨3厨4厨5厨6厨
1卫2卫3卫4卫5卫6卫
1阳台2阳台3阳台4阳台5阳台6阳台

*请输入正确的手机号

免费预约量房

今日已有6,398位用户预约成功

1室 1厅 1厨 1卫 5阳台
1室2室3室4室5室6室
1室2厅3厅4厅5厅6厅
1厨2厨3厨4厨5厨6厨
1卫2卫3卫4卫5卫6卫
1阳台2阳台3阳台4阳台5阳台6阳台